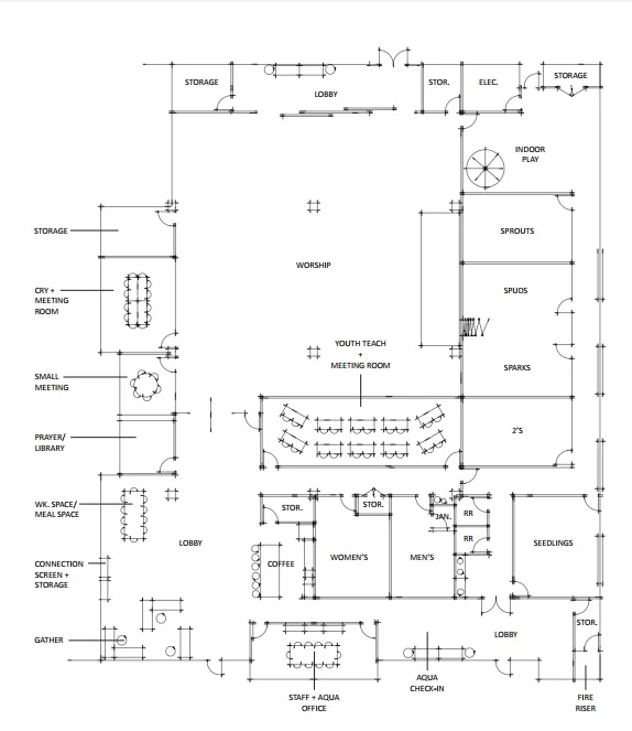
1888 Stebbins Design Sketch Here is the proposed architectural design sketch for what the final buildout will look like. Click the image to view and download the larger sketch PDF. Access ECCApril 12, 2017Comment Facebook0 Twitter 0 Likes